Продажа! Уникальный дом-усадьба для большой семьи в элитном поселке Совиньон 1 !!! (№ 22-196-944)
Ціна: 560 000 $

Характеристики
Ціна: | 560 000 $ |
---|---|
№ об'єкта: | 22-196-944 |
Тип: | будинок |
Поверхів: | 4 |
Спалень: | 4 |
Площа будинку: | 600 м2 |
Ділянка: | 10 сот |
Додатково: | гараж, котеджне містечко |
Адреса: Одеська, Одеса, Київський, Совіньйон
Дом расположен на территории приватного элитного поселка Совиньон, в рамках которого построены: церковь, школа, детский сад, супермаркеты, SPA центр, теннисные корты, яхт-клуб, обустроены пляжи и открыты новые рестораны.
Для любителей крепкого здоровья построен банный комплекс с выходом в парковую зону (сосновую рощу), оборудованную местами для отдыха детей и взрослых!
Самое главное достоинство Совиньона - экологически чистое побережье Чёрного моря. Территория поселка 'Совиньон' охраняется 24 часа в сутки!
Ваш Дом в безопасности, а комфорт семьи - на первом месте.
Важно! До пляжа - 100 м
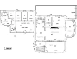
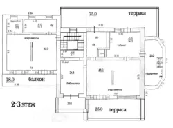
Дом:
Этажность:4 этажа;
Площадь: 600 м2
Готовность: 90 %;
Состояние: отличное;
Год постройки: 2009;
Капитальный ремонт - в 2024 году.
В доме:
- кухня;
- столовая;
- 4 блока спален;
- 2 гардеробных;
- 4 санузла;
- бильярдная,
- игровая комната,
- каминный зал.
- тренажерный зал.
- финская сауна с бассейном, комнатой отдыха и санузлом.
Стены:
кирпич, кирпич облицовочный;
Крыша: металлочерепица;
Дом построен очень качественно с соблюдением всех норм и стандартов, капитальный фундамент – 84 сваи.
Газ: в доме;
Водоснабжение: артезианская скважина – 80 м;
Канализация: местная;
Отопление: котел двухконтурный «ferolli».
Система бесперебойного электроснабжения;
Нагрев воды: газ/электричество;
Установка многоступенчатой очистки воды.
Установлены кондиционеры – 12 штук;
Подогрев полов - частичный;
Участок:
площадь - 10 соток;
Ландшафт- садовые и хвойные деревья, много цветов,
туи, можжевельник, кустарники, редкие деревья.
Дополнительные постройки:
- большой бассейн с подогревом и подсветкой, размером 18х6 метров;
- летняя зона беседок.
Дом введен в эксплуатацию, земля - Госакт.
Автоматические ворота с дистанционным управлением.
Сигнализация, видеонаблюдение, пожарная сигнализация, отдельно
выделена высокоскоростная линия интернет, спутниковое телевидение.