Магазин, салон, кофейня ул.Канатная. (№ 1-587-450)
Ціна: 15 000 грн. + комунальні

Характеристики
| Ціна: | 15 000 грн. + комунальні |
|---|---|
| № об'єкта: | 1-587-450 |
| Тип: | торгівельні площі, кафе, бар, ресторан, об'єкт сфери послуг |
| Поверх: | 1 / 4 |
| Площа: | 40 м2 |
| Додатково: | окремий вхід, кондиціонер |
Адреса: Одеська, Одеса, Приморський, Канатная ул., 75
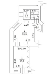
Нежилой фонд.
Широкий фасадный вход и два больших фасадных окна на ул. Канатная.
Общая площадь помещения 40мКв, торговый зал правильной формы 22,4мКв. Ширина фасада 4,5 м.
Хорошая планировка, кондиционер, э/м 380 В, 10 кВт. Отопление - электрокотел.
Второй индивидуальный (черный) вход с арки.
Помещение под любой вид деятельности.










