Оперный театр! Пале-Рояль! Дом Навроцкого! Ваша квартира здесь! (№ 212-796-582)
Ціна: 480 000 $

Адреса: Ланжероновская ул., 8, Одеса, Одеська
Характеристики
| Ціна: | 480 000 $ |
|---|---|
| № об'єкта: | 212-796-582 |
| Кімнат: | 2 розд |
| Поверх: | 2 / 4 ліфт |
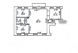
| Площа: | 134,5 / 33,1 / 41 м2 |
| Санвузол: | 2 роздільний |
| Балкон: | балкон |
| Состояние ремонта: | с ремонтом |
Опис
Самый центр Одессы! Дом, рядом с Оперным театром! Продажа квартиры на 2-ом этаже из 4, общая площадь - 134 м2, высота потолков - 4.0 метра, большая кухня-студия 41 м2, две спальни, два санузла, гардероб, двухсторонняя. Большой балкон выходит в Пале-Рояль.
Стильный дизайнерский ремонт с использованием самых современных материалов. Итальянская мебель.
В доме один вход на 8 квартир, лифт.
Историческое здание в отличном состоянии, после полной реконструкции фасада, несущих конструкций, перекрытий и всех коммуникаций в 2007 году.
Дом Навроцкого. Восьмой дом улицы сооружен в 1891 году по проекту архитектора И.Ф. Яценко. Некогда на его месте находилась лавка купца К. Меля, которая была частью торговых рядов, построенных в 1841-1843 гг. по проекту архитектора Д. Торичелли. Эти торговые ряды одесситы, обожавшие проводить аналогии между Одессой и Парижем, назвали Пале-Роялем, и это просторечное название так гармонично вплелось в говор жителей, что прижилось, наверное, на века. Мало кто из одесситов знает, что сорок лет – с 50-х по 90-е года прошлого века – Пале-Рояль именовался сквером имени Чарльза Дарвина. Какой там Дарвин, у нас тут кусочек Парижа! Со временем торговые ряды сменились жилыми зданиями. Дом из красного кирпича и ракушечника принадлежал издателю и редактору одной из самых популярных газет в Одессе 'Одесский листок' Василию Васильевичу Навроцкому.
Покупайте для себя лучшее!





































